
Impiana33 is a part of the ongoing Taman Putra Impiana mega development project in Puchong. Featuring modern designs and concepts, the entire development consists of Double Storey Terrance House, Low Cost Apartment, Medium Low Apartment, 2.5 Terrace Houses, High End Condominium, Link Bungalows and Impiana33, which features 33 exclusive shop office in the centre of the project.

Elegant Al Fresco Concept (15ft Wide Promenade Design)
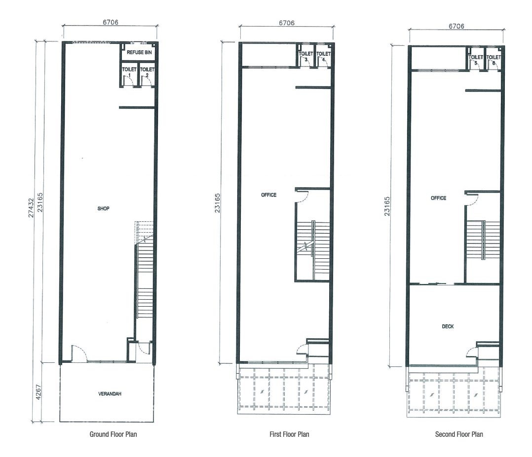
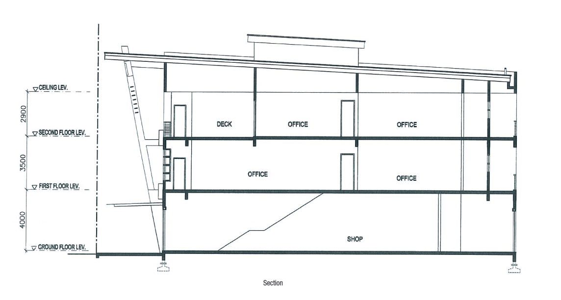
The Al fresco concept is related to the Spanish term, for dining outdoors. This concept improves pedestrian activity and vibrancy associated with al fresco dining. The building concept utilizes this new concept in its design featuring extended verandas, a spacious interior build up, a luxurious glass façade, and a soaring floor and ceiling height that compliments natural lighting.

Lifestyle Hub in The Bustling Township
Impiana33 is a place where business and lifestyle is balanced harmoniously. It is an inimitable crafted development designed as a lifestyle hub with thoughtful layout, architecture, landscaping and an environment tailored to improve today’s business environment for young entrepreneurs.

Unique Layout & Architectural Charm
Impiana33’s unique layout and architecture gives it a sense of space and neatness not to mention diverting and managing parking and the traffic flow flawlessly.

Endless Business Opportunity
An upcoming township with huge population catchments surrounds the Impiana33 development giving it the advantage of tapping into the large and affluent population in the Taman Putra Impiana township project. The development will be capitalizing on the firm base of demand and steady consumer flow.

Strategic Location Close to Local Amenities
Impiana33 is strategically located along Jalan Putra Impiana, the main road of the development for high visibility making it an eminent choice for business due to its proximity and excellent connectivity to major amenities and facilities such as schools, established fast food outlets, a Tesco Extra and Giant Hypermarket, Easily accessible via Lebuhraya Damansara Puchong (LDP), Federal Highway, Kesas Highway, Mes Highway.